VERHUURD - Kantoor- bedrijfsruimte - Brede Steeg 8 en 10 in 's-Heerenberg
Prijs op aanvraag - bedrijfs- en kantoor ruimte - circa 4340m²
Op zoek naar een unieke locatie voor uw bedrijf? Dit bedrijfspand is geschikt voor logistieke opslag of productie, gecombineerd met een modern kantoor dat een prachtig uitzicht biedt over de weilanden van het grensgebied. Het object is zeer gunstig gelegen op de grens van Duitsland en Nederland, tussen het Ruhrgebied en de Randstad. De op- en afritten van de A3 en A12 zijn binnen enkele minuten bereikbaar.
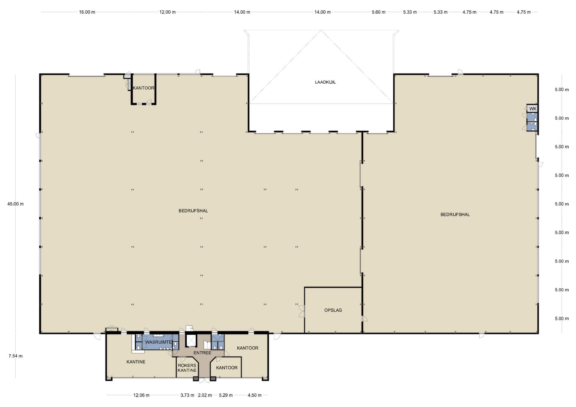
Aan de voorzijde van het pand bevindt zich de entree van het kantoor. Aan de achterzijde (Weteringstraat) is de bedrijfshal toegankelijk via 5 laaddocks en 4 overhead deuren.
De totale vloeroppervlakte bedraagt circa 4340m². Dit is als volgt onderverdeeld:
- Bedrijfsruimte: circa 3730m² (hal A 2400 m² + hal B 1330m²)
- Kantoorruimte: circa 600m² (begane grond, 1e en 2e verdieping)
Locatie
Bedrijventerrein ‘Het Goor’ ligt aan de Nederlandse kant van de grens tussen Nederland en Duitsland. Het terrein is bereikbaar vanaf de Rijksweg A12 of vanaf de Duitse snelweg A3. De Rhein-Waal Terminal en het treinstation in Emmerich am Rhein liggen op minder dan 5 kilometer van de locatie. Dit biedt directe en snelle intermodale verbindingen naar alle andere logistieke hotspots in Nederland en Duitsland. Bekende organisaties met distributiecentra op het bedrijventerrein zijn onder andere Mainfreight en Rabelink Logistics.
Opleveringsniveau
Het bedrijfsobject zal worden opgeleverd met de volgende voorzieningen.
Bedrijfshal
- Hoogte 12 m;
- Maximale vloerbelasting van 4.000 kg/m²;
- 5 laaddocks en meerdere overhead deuren met elektrisch bedienbare deuren;
- Dak is volledig voorzien van zonnepanelen;
- Ruime buitenruimte en voldoende parkeer gelegenheid
- Rook- en brandmeld systeem;
- Rookafvoer luiken;
- Heaters;
- Alarmsysteem;
- Kraanbaan is mogelijk ter overname;
- Entresol is mogelijk ter overname;
- Windturbines (2x) op het dak zijn mogelijk ter overname.
Kantoorruimte
- Ruime representatieve entree;
- Lift
- Led-verlichting;
- Systeemplafonds met armaturen;
- Kabelgoten;
- Scheidingswanden;
- Cv-installatie met radiatoren;
- Klimaatsysteem inclusief airco;
- Pantry in kantine;
- Glasvezel aansluiting is mogelijk.
Huurprijs
Op aanvraag
Aanvaarding
-
Interesse
Wilt u een bezichtiging inplannen? Neem contact op via info@rodaxinvestduo.nl of 0314-674111
Aan bovengenoemde informatie kunnen geen rechten worden ontleend.






