VERHUURD | Studio aan de Walsteeg 1A 's-Heerenberg
Omschrijving
Zoekt u een comfortabele en gezellige studio, midden in het historische hart van ’s-Heerenberg met alle voorzieningen in de buurt? In het centrum van de historische stadskern van ’s-Heerenberg bevinden zich 4 riante appartementen en 2 unieke studio’s. Het gehele complex is gelegen aan de Oudste Poortstraat en aan de achterzijde ontsloten aan de Walsteeg.
De studio
De studio is gelegen aan de achterzijde van het complex op de begane grond en heeft de volgende eigenschappen:
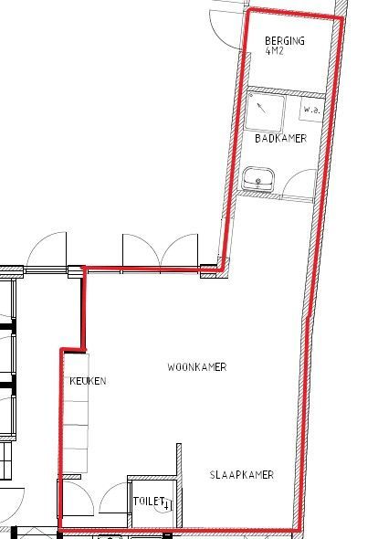
- Woon oppervlakte circa 45 m2 (excl. berging)
- Buitenruimte op het zuiden. Gelegen op het gezellige binnenplein, te bereiken via de openslaande deuren in de woonkamer
- Open indeling
- Compleet uitgevoerde keuken met vaatwasser, inductie kookplaat, combi oven en koelkast met vriesvak
- Badkamer met inloopdouche, badmeubel met spiegel en aansluiting voor wasmachine en droger
- Apart toilet
- Berging
- Parkeerplaats
Te huur per 1 mei 2024
Huurprijs: € 790,- per maand
Excl. service kosten en energie kosten.
Let op: Om in aanmerking te komen voor deze huurwoning stelt de verhuurder inkomensvereisten.
De locatie
Midden in de historisch binnenstad van 's-Heerenberg, bent u vanuit de woning dichtbij alle voorzieningen. Al wandelend bereikt u binnen 1 minuut meerdere supermarkten en winkels, waar u terecht kunt voor al uw dagelijkse boodschappen. Meerdere horecagelegenheden met zonnige terrassen treft u letterlijk voor de deur, evenals de gezellige wekelijkse warenmarkt op donderdag. In ’s-Heerenberg heeft u alles bij de hand, maar ook het centrum van Doetinchem en het Duitse Emmerich am Rhein is niet ver weg. Door de ligging op slechts enkele kilometers van de snelweg A3/A12 Arnhem/Oberhausen, is de bereikbaarheid uitstekend.
Kasteelstad 's-Heerenberg
Op enkele minuten loopafstand staat het imposante middeleeuwse kasteel Huis Bergh, omgeven door een uitgestrekte kasteeltuin waar u heerlijk kunt wandelen. In het historische centrum kunt u talrijke monumentale gebouwen bewonderen, zoals de St. Pancratiuskerk, de Boetselaersborg, het Neije Raethuys, Sint-Bonifatiusklooster (Gouden Handen) en het oude Muntgebouw.
De Groene poort van de Achterhoek
Montferland ligt in het zuiden van de Achterhoek tussen de plaatsen Doetinchem, Didam en ‘s-Heerenberg aan de Duitse grens. Wandelaars en fietsers kunnen er hun hart ophalen aan de afwisselende landschappen. Op een betrekkelijke kleine schaal is dit wel één van de mooiste gebieden van Nederland.



